 |
|
| ◆特選物件画像 |
 |
| マウスを画像に合わせると拡大画像がご覧いただけます |
| |
|
|
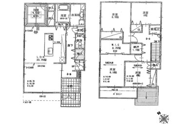
| ◆間取り図 |
 |
図面と現況に相違がある場合、現況を優先します |
|
◆ 物件詳細 ◆ |
| 物件種目 |
中古戸建 |
| 最寄り駅 |
泉大津 |
| 間取りタイプ |
5LDK+WIC |
| 価格 |
3,020万円 |
| 所在地 |
泉大津市東雲町 |
| 交通 |
南海本線 泉大津駅 徒歩9分 |
| 土地面積 |
161.17u |
| 建物 |
建物・規模 |
木造2階建 |
| 面積 |
153.34u(約46.38坪) |
| 間取り内訳 |
1F/和室4.5帖/LDK23.75帖 2F/洋室6帖×2 8.5帖×2/WIC3.75帖 |
| 土地権利 |
所有権 |
地目 |
宅地 |
| 都市計画 |
市街化区域 |
用途地域 |
準工業地域 |
| 建ぺい率 |
60% |
容積率 |
200% |
| 他の制限 |
|
| 築年月 |
2006年2月 |
駐車場 |
あり |
| 現況 |
居住中 |
引渡日 |
相談 |
| 建築確認 |
|
| 接道状況 |
南西側幅員約5.4m公道に葯9.5m接道
上下水道・都市ガス
室内丁寧に使われています。延床面積ゆとりの約45坪!
|
| 設備 |
| 備考 |
| |
|
|
|
|
|